
Maison Individuelle Neuve Prête à décorer
Je vous invite à découvrir cette maison individuelle de plus de 90 m² habitable, construite en 2025, offrant un cadre de vie agréable et un confort moderne.
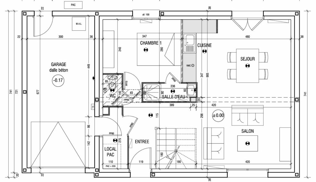
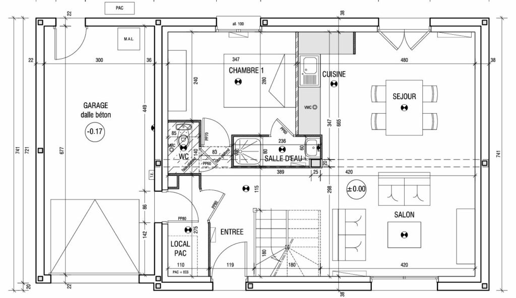
Avec ses 4 chambres spacieuses, dont une au rdc avec salle d'eau attenante et son séjour lumineux de 32 m², et ses 2 niveaux, cette propriété vous permettra de profiter de belles prestations.
Le rez-de-chaussée se compose d'une cuisine aménagée, d'un séjour spacieux, d'une salle à manger, d'une chambre avec salle d'eau, d'un cellier et d'un wc indépendant, tandis que l'étage abrite les trois chambres, la salle de bains et le wc indépendant.
La maison est équipée d'un chauffage individuel, par aérothermie. Les fenêtres en PVC/Aluminium avec double vitrage, et une toiture en ardoise artificielle, garantissent une isolation optimale.
Profitez d'un jardin privatif pour des moments de détente en plein air, et d'un stationnement intérieur pour votre véhicule grâce au garage de plus de 20m2. Vous pourrez également profitez d'une belle terrasse.
La maison est située dans un quartier calme et bien desservi, avec plusieurs commodités à proximité.
Ne manquez pas cette opportunité de vivre dans une maison neuve, prête à accueillir à vous accueillir vous et votre famille. Contactez-nous dès aujourd'hui pour une visite!
Honoraires inclus de 5% TTC à la charge de l'acquéreur. Prix hors honoraires 300 000 €. Dans une copropriété de 19 lots. Aucune procédure n'est en cours. Non soumis au DPE. Les informations sur les risques auxquels ce bien est exposé sont disponibles sur le site Géorisques : georisques.gouv.fr.
Votre conseiller RENT IMMO : Elodie Blancho
Agent commercial (Entreprise individuelle)
RSAC 879973378
RCP 106594450001
Classe Énergie - DPE
NSClasse climatique - GES
NSMontant dépenses énergétiques min
0.00 €Montant dépenses énergétiques max
0.00 €