Contact

Rent’immo, vous propose

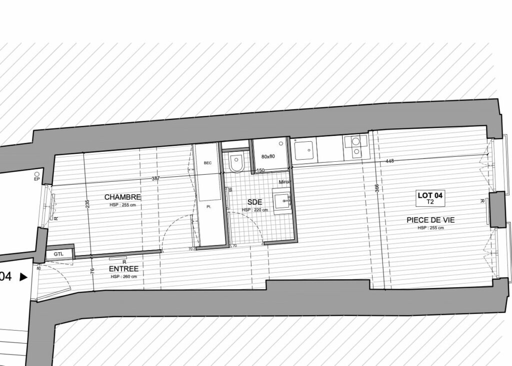
Appartement 2 pièces

1 pièces • 34.30 m² • Nantes
128 000€
BIEN PUBLIÉ LE
16 décembre 2024

Description du bien

Quartier Graslin sur la place de la Bourse à Nantes.
Venez découvrir cet appartement traversant et plein de charme de plus de 34m2, niché au 3ème étage sans ascenseur d'un immeuble des années 1900.

Hauteur sous plafond, parquet chevrons, cheminée d'époque. Tout y est !

Dans la configuration actuelle, le couloir d'entrée dessert une cuisine (facilement évolutive en chambre) et vous emmène vers la pièce de vie lumineuse, de plus de 20m2. Une salle de bain complète le tout.

L'appartement, bien que sain, nécessite une rénovation complète (redistribution des pièces, électricité, ouvertures, peinture, etc) afin de créer un cocon à votre image un grand T1 ou un beau T2.

Devis de rénovation à disposition permettant le passage en DPE C.

Amateurs de travaux, ce projet est fait pour vous et vous offre un investissement intéressant dans un quartier patrimonial.

Vous retrouverez toutes les commodités du centre-ville à proximité immédiate ainsi que les transports, à quelques minutes à pied (tramway ligne 1).

Honoraires inclus de 5.79% TTC à la charge de l'acquéreur. Prix hors honoraires 121 000 €. Dans une copropriété de 9 lots. Aucune procédure n'est en cours. Classe énergie E, Classe climat D Montant moyen estimé des dépenses annuelles d'énergie pour un usage standard, établi à partir des prix de l'énergie de l'année 2021 : entre 771.00 et 1044.00 €. Les informations sur les risques auxquels ce bien est exposé sont disponibles sur le site Géorisques : georisques.gouv.fr.

Votre conseiller RENT'IMMO : Julien ARTU
Agent commercial (Entreprise individuelle)
RSAC 85409240000035
RCP RCACO-22-024859

Lire la suite

Critères energétiques

Classe Énergie - DPE

E

Consommation énergétique en kWh/m²/an (DPE)

299

Classe climatique - GES

D

Émission en CO2/m²/an (GES)

48

Date de réalisation du DPE

19/11/2021

Date indice prix énergie

2021

Montant dépenses énergétiques min

771.00 €

Montant dépenses énergétiques max

1044.00 €

Galerie d'images

Lancez votre projet !
Formulaire de bas de page
+33
Lancez votre projet !
Formulaire de bas de page
+33
chevron-down